Vissza#385729, Eladó új építésű, 2 szintes lakóház
Szobák: 5 Lakóterület: 133.00 m2 Erkély/terasz: 17 m2 Telek: 390.00 m2149 990 000,- Ft
149 990 000,- FtSzobák: 5 Lakóterület: 133.00 m2 Erkély/terasz: 17 m2 Telek: 390.00 m2
Janzsó Zoltán
+36 20 66 508 66
- Település: Szombathely
- Ügyvitel típusa: Eladó
- Építési mód: tégla
- Építés éve: 2026
- Fűtési mód: Gáz (cirko)
- Lakótér mérete: 133.00 m2
- Telek mérete: 390.00 m2
- Szobák száma: 5
- Ár: 149 990 000,- Ft
Az ingatlan bemutatása
Szombathely belvároshoz közeli kertvárosi részén, a Bartók Béla körút és a Somogyi Béla utca találkozásánál elhelyezkedő, kiváló fekvésű saroktelken épülő lakóház eladó!
A közel 700 m²-es telken 2 db, 2 szintes családi ház épül magas műszaki tartalommal. Az ingatlanok között épülő garázsok és kerítés biztosítja a lakóegységek intimitását, "szomszédmentességét".
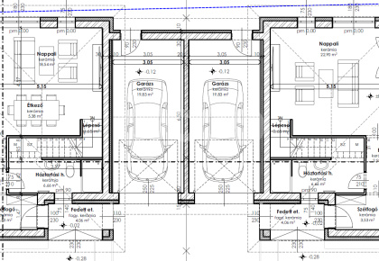
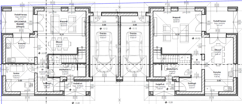
A földszinten került kialakításra a nappali, konyha, étkező, háztartási helyiség, valamint opcionálisan egy hálószoba.
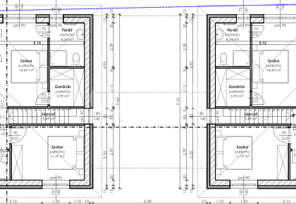
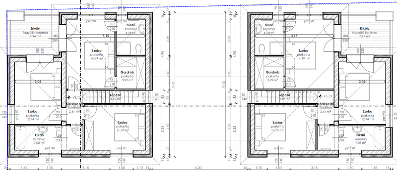
Az emeletre 3 jól élhető méretű szobát, gardróbhelyiséget és 2 fürdőszobát terveztek, gondolva a nagyobb családok hétköznapjainak kényelmére.
A földszinten 9 m²-es fedett terasz, vagy választhatóan télikert tartozik a házhoz, az emeleten pedig egy 8 m²-es erkély kapcsolódik a lakótérhez.
MŰSZAKI TARTALOM:
A házak fűtését gáz-cirkó rendszerre tervezték, padlófűtéssel, klímával kiegészítve. Igény szerint hőszivattyús fűtési mód is választható, valamint napelemek felszerelésére is van lehetőség.
Parkolásra a 19 m² nagyságú garázsban lesz lehetőség.
MEGBÍZHATÓ szombathelyi beruházó-kivitelező, számos referenciával!
A tulajdonos az értékesítést KIZÁRÓLAG a 9700.hu Ingatlanirodára bízta!
Az ingatlan további adatai
- Típusa: családi ház
- Állapota: új építésű
- Parkolás: garázsban
- Tájolás: délnyugati tájolás
- Klíma: saját split klíma
- Erkély területe: 8.00 m2
- Terasz területe: 9.00 m2
- Szobák száma: 5



















