Vissza#316529, Eladó nappali + 2 szobás új építésű lakás
Szobák: 3 Lakóterület: 65.00 m2 Erkély/terasz: 9 m267 000 000,- Ft
67 000 000,- FtSzobák: 3 Lakóterület: 65.00 m2 Erkély/terasz: 9 m2
Janzsó Zoltán
+36 20 66 508 66
- Település: Szombathely
- Ügyvitel típusa: Eladó
- Építési mód: tégla
- Építés éve: 2025
- Fűtési mód: Gáz (cirko)
- Lakótér mérete: 65.00 m2
- Telek mérete: 0.00 m2
- Szobák száma: 3
- Emelet: 1
- Ár: 67 000 000,- Ft
Az ingatlan bemutatása
Belváros közelében, de csendes környezetben - igényes megjelenésű új építésű - kis lakóközösséggel rendelkező - kiváló helyiségelosztás, fedett terasz - vételárba beletartozó saját autóbeálló zárt udvaron belül - modern igényeknek megfelelő, műszakilag korszerű kivitelezés!
- Ezek azok a tulajdonságok, melyek az újonnan épülő és 2026 nyár végén birtokba vehető 4 lakásos társasházat jellemzik.
- Ezek azok a paraméterek, melyeknek köszönhetően értékálló ingatlant birtokolhat tulajdonosa, saját részre vagy befektetésre mindig tökéletesen megfelel.
- Ezek azok a lakások, melyekre azonnal le kell csapni - már csak 2 elérhető a 4 lakásból!
ELHELYEZKEDÉS:
Szombathelyen a Babits Mihály utcában a Fő tér és a Savaria Pláza közötti családi házas övezetben épül a társasház, ahonnan gyalogosan is percek alatt elérhetők a napi szinten szükséges szolgáltatások, élelmiszerüzletek, iskolák, óvodák.
A MÉG ELADÓ LAKÁSOKOK közül a szóban forgó:
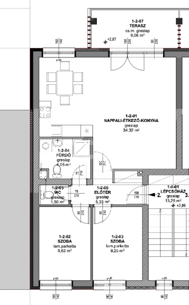
- 1. emeleti elhelyezkedésű,
- 65 m² alapterületű, amelyhez egy 9 m²-es fedett terasz tartozik
- nappali-étkező-konyha + 2 szoba elosztású.
- fürdő és WC külön helyiségben kerül kialakításra.
- a fűtés házközponti, egyedi mérőkkel, napkollektorral kiegészítve
- parkoló: saját autóbeálló zárt udvaron beül (a vételár tartalmazza)
Megbízható szombathelyi beruházó és kivitelező referenciákkal - további információk telefonos egyeztetést követően, személyesen!
A tulajdonos az értékesítést KIZÁRÓLAG a 9700.hu Ingatlanirodára bízta!
Az ingatlan további adatai
- Típusa: társasházi lakás
- Állapota: új építésű
- Parkolás: beállón
- Tájolás: észak-déli tájolás
- Emeletek a házban: 2
- Terasz területe: 9.00 m2
- Szobák száma: 3









